Brno - Kamechy

Prodej bytu se zahrádkou, 1+kk, 38 m², Brno – Bystrc PRODÁNO

Chcete prodat vaši nemovitost?
Kontaktujte mě!

Veronika Viklická
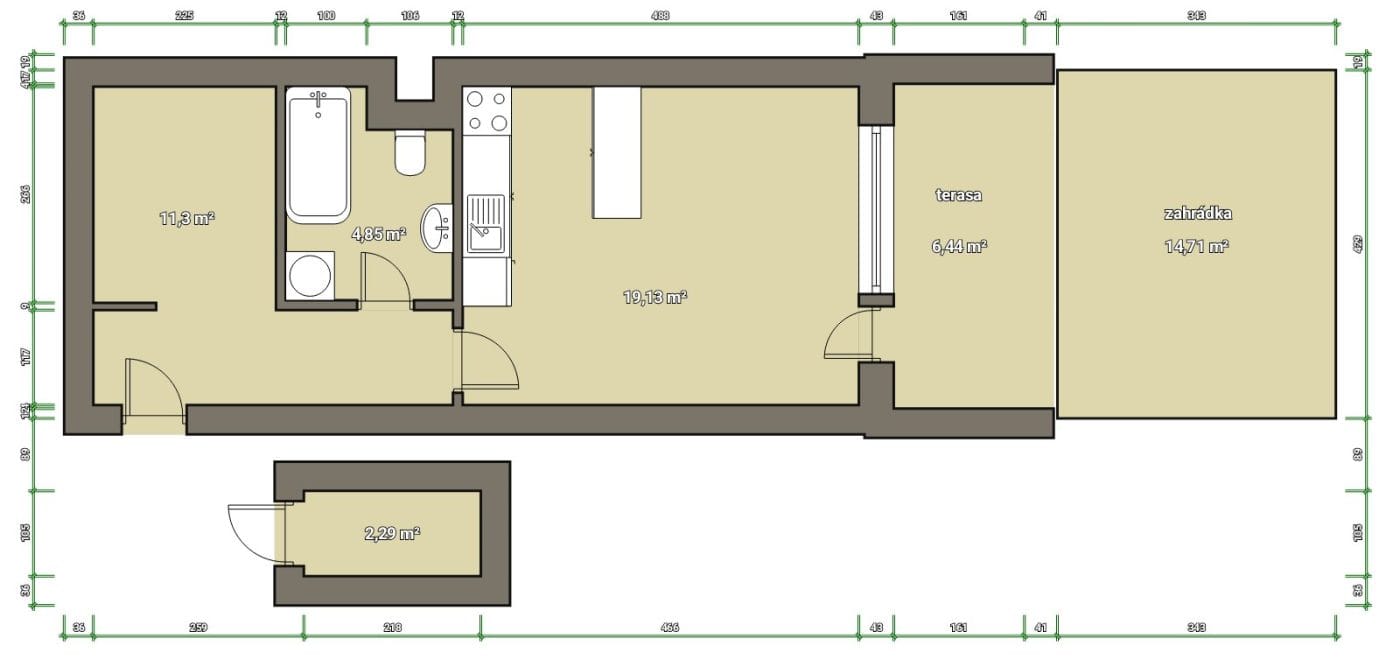
Nabízíme k prodeji krásný a světlý byt o dispozici 1+kk a podlahové ploše 38 m² v oblíbené lokalitě Kamechy. Byt je velmi útulný, vybavený klimatizací a díky vlastní zahrádce nabízí dokonalé propojení pohodlí bytu s relaxací venku.
Moderní interiér je řešen prakticky a s důrazem na komfort. Zahrádka poskytuje ideální prostor pro odpočinek, grilování či posezení s přáteli.
Byt se nachází v klidné části města s výbornou občanskou vybaveností – v okolí naleznete obchody, kavárny, restaurace i přírodu pro volnočasové aktivity. Výborná dopravní dostupnost do centra Brna.
Hlavní výhody bytu:
•útulný a světlý interiér
•klimatizace pro komfort v létě i v zimě
•vlastní zahrádka pro relax a soukromí
•klidná a vyhledávaná lokalita Kamechy
Tento byt je ideální volbou pro jednotlivce či pár, kteří hledají moderní bydlení s příjemným venkovním prostorem.
Financování lze řešit hypotékou, se kterou vám rádi poradíme.
Těšíme se na prohlídce.